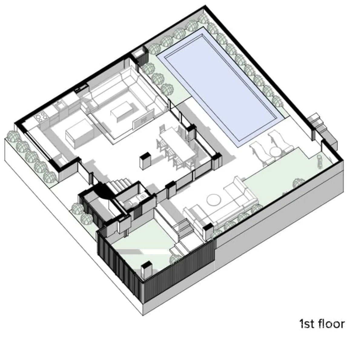
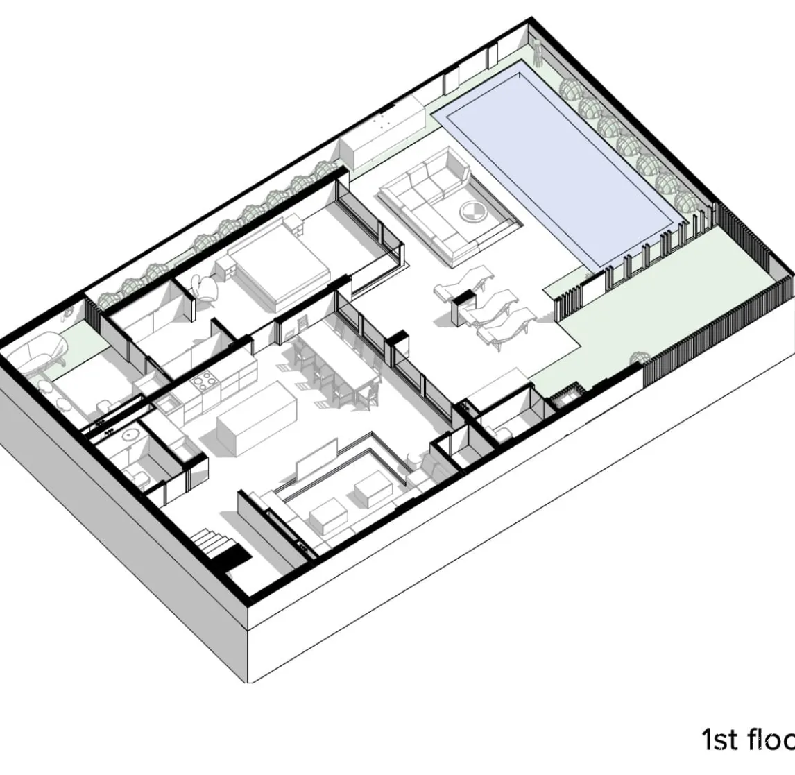
One-bedroom villa on the second floor
• Fully furnished villas with original design • Kitchen with household appliances • Master bedroom with bathroom and dressing room on the second floor • Bathroom with furniture and sanitary facilities • Private pool with outdoor terrace • Rooftop on the 2nd floor • Sliding partitions around the perimeter • Air conditioning • Smart-TV, Wi-Fi • Landscape gardening and lighting • A place for storing sports equipment • Parking space for bikes and bicycles • Washing machine and dryer * • Parking ** • View of the bay / Garuda statue / forest / park ** * Additional option at the request of the buyer ** Option that depends on the type of unit and its location





